應中國某研究所要求,由深圳喆能電子技術有限公司提供設備及場地,對客戶所提供的特制金屬模具進行電磁感應加熱并通過相關檢測進行技術驗證。
根據客戶說明,該模具應用于高溫高壓的制造工藝中,使用前需將模具加熱到一定溫度。相對于傳統的電加熱及熱輻射加熱方式,電磁感應加熱方式無疑有著極大的優勢,主要表現在電磁感應加熱方式具有精確的加熱指向和精準的溫度控制,強弱電隔離,安全、高效且無污染。同時,感應加熱設備投資成本低,尤其控溫精確,將會在很大程度上提高產品的質量和生產效率。
為確保模具在應用新的感應加熱方式后沒有對模具產生任何可預見的不良影響,深圳喆能電子技術有限公司搭建了模具加熱試驗平臺,對客戶所提供的模具進行相關的技術模擬及檢測驗證。
一、加熱原理
將50Hz工頻電轉換為20KHz左右的高頻交流電,利用變頻磁感應原理,高速變化的電流流過高頻線圈產生變化的磁場,高速變化的磁場產生的磁力線通過線圈外部的金屬時產生無數的渦流,渦電流使得金屬主動發熱,從而起到加熱的目的,整個過程是“電—磁—熱”的高效轉化過程,相比傳統電加熱節能效果好。
     
    
二、實驗平臺
公司根據所加熱模具的尺寸,定制了長度為400mm,外徑為Ф120mm內徑為Ф100mm的陶瓷管,并在管段外直接纏繞上感應線圈,線圈采用10平方毫米高溫云母銅線密繞,調試時根據模具外形、感量和匹配率調整線圈匝數。
    
| 
                            加熱部分 
                            (10KW加熱裝置) | 
                            原理 | 
                            采用磁驅動及變頻的技術,使線圈內部的負載主動發熱,從而起到加熱模具的目的。整個過程是“電-磁                            - 熱”高效轉換。 | 
| 
 | 
                             目標溫度    | 
                             40°C -150°C,精度±3°C   | 
| 
 | 
                             加熱產品 | 
                            1、針對上述Ф40mm的小尺寸壓藥模具,材料為9SiCr 
                            2、各模具單獨加熱時間為3min-10min。 | 
| 
 | 
                             定制線圈 | 
                            加熱區域線圈選用10mm2的定制導線,根據模具形狀調整線圈疏密度。 | 
| 
 | 
                             測溫點 | 
                            每個模具設置1個測溫點,以采集溫度并控制加溫系統。 | 
| 
 | 
                             溫度顯示 | 
                            采用數字溫度控制器,實時顯示加熱溫度。 | 
| 
                             控制部分 | 
                             采用數字信號控制,當測溫原件檢測到當前溫度后,輸出0-10v/4-20mA或485信號控制輸出加熱功率。并配有溫控保護措施。 | |
| 
 | 
                            輸入AC電壓:220V及380V | |
         
    
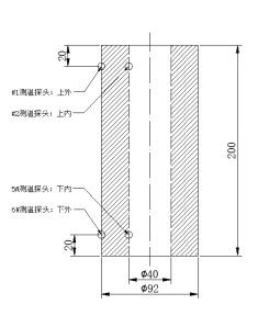
測溫探頭安裝位置
        
 
    
三、實驗目的與結論
感應加熱過程中的溫度均勻性研究
經過多次的試驗摸索及驗證,要使得模具升溫在滿足要求的時間內達到目標溫度,又要滿足模具各測溫點溫差不超過3°C的要求,各不同模具的需要不同的功率,且不同形狀模具所需要的繞線疏密程度也不一樣。
加熱頻次和時間對模具內部質量的影響
從模具的加熱前后的兩次無損探傷和金相組織分析檢測所得結論上看,在該實驗條件下的加熱方式和頻次,對模具自身的影響幾乎可以忽略。
磁化現象
從理論上說,物質是否會被電流磁化,取決于物質的材質、磁場強度以及磁場力作用時間。而電磁感應加熱則是利用變頻磁感應原理,由高速變化的電流流過高頻線圈產生變化的磁場,高速變化的磁場產生的磁力線通過線圈外部的金屬時產生無數的渦流,渦電流使得金屬主動發熱,從而起到加熱的目的,由此看來,磁場作用的時間極短且正反的高速轉換,沒有使得模具被磁化的條件。而且經實驗驗證,經過電磁感應加熱后的模具,所具有的磁性特性沒有任何明顯變化。
撰稿:深圳喆能電子技術有限公司,專注電磁加熱技術,重新定義加熱方式!
官方網址:http://www.bag28.cn
微信公眾號:ZENEN11111
聯系電話:0755-23495829 13247620475
            
        
        
    
    
    
400電話